|
|
 |
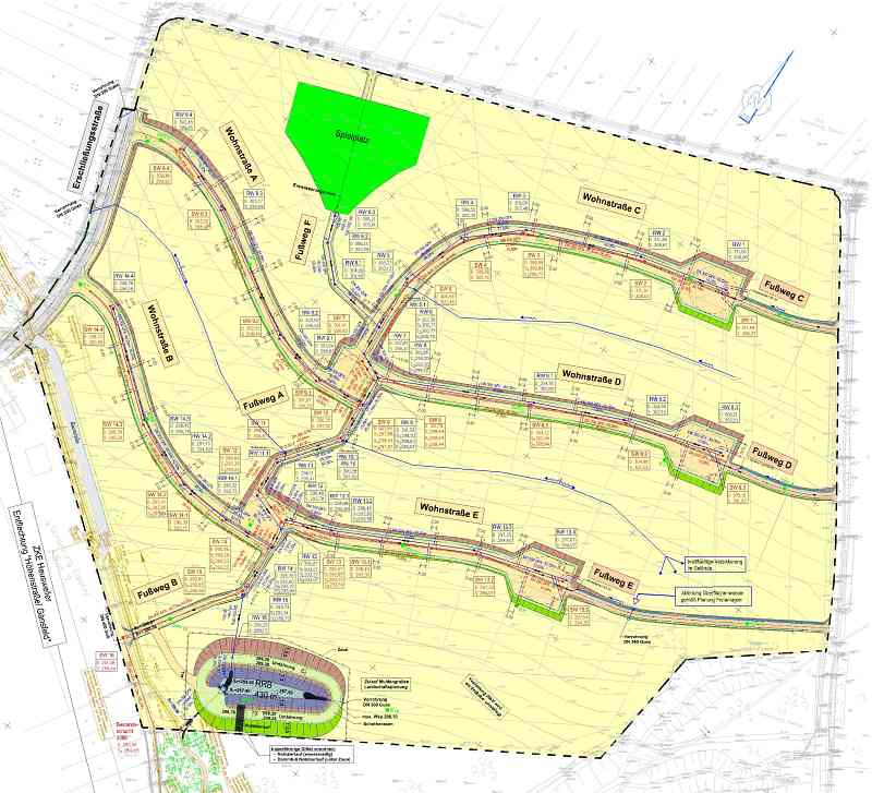
Wohngebiet „Grauenthal“
Entwässerung und Straßenbau sowie Erdarbeiten Kabel- und Versorgungsleitungen
in der Gemeinde Losheim am See, OT Losheim |
| |
Auftraggeber: Gemeinde Losheim am See
Bearbeitung: Juni 2015 - Juli 2018 |
weitere Info in der pdf-Datei |
 |
Industriegebiet „Lisdorfer Berg“
Geländemodellierung, Entwässerung, Straßenbau sowie Kabel- und Versorgungsleitungen
in der Kreisstadt Saarlouis, Stadtteil Lisdorf |
| |
Auftraggeber: gwSaar Gesellschaft für Wirtschaftsförderung Saar GmbH
Bearbeitung: April 2009 - voraussichtlich Mai 2019 |
weitere Info in der pdf-Datei |
 |
Sanierung Ludwigsparkstation
Geländemodellierung Osttribüne und „Hochziehen“ Stadt Nr. 23371 neu
in der Landeshauptstadt, Stadtteil Malstatt |
| |
Auftraggeber: GMS Gebäudemanagmentbetrieb der LHS
Bearbeitung: April 2014 - Februar 2017 |
weitere Info in der pdf-Datei |
 |
GI „Häsfeld“
Rückbau Böschung für Neubau DZ 3 Fa. Dachser
in der Gemeinde Überherrn, OT Altforweiler |
| |
Auftraggeber: SBB Saarland Bau und Boden Projektmanagment mbH
Bearbeitung: November 2015 - Januar 2016 |
weitere Info in der pdf-Datei |
 |
„Industriepark Holz“
Entwässerung und Straßenbau sowie Kabel- und Versorgungsleitungen
in der Gemeinde Losheim am See, OT Niederlosheim |
| |
Auftraggeber: gwSaar Gesellschaft für Wirtschaftsförderung Saar GmbH
Bearbeitung: Mai 2009 - August 2015 |
weitere Info in der pdf-Datei |
 |
Quartier Eurobahnhof Baureifmachung Baufeld „Bahnhofvorplatz Nord“
in der Landeshauptstadt, Stadtteil Malstatt |
| |
Auftraggeber: GIU mbH & Co. Flächenmanagement KG
Bearbeitung: August 2014 - Juli 2015 |
weitere Info in der pdf-Datei |
 |
IT Park Saarland Baureifemachung Baufeld „Süd“ und Baufeld „Mitte“
in der Landeshauptstadt, Stadtteil Burbach |
| |
Auftraggeber: GIU mbH & Co. Flächenmanagement KG
Bearbeitung: Juli 2014 - Januar 2015 |
weitere Info in der pdf-Datei |
 |
Quartier Eurobahnhof Saarbrücken
Entwässerung sowie Kabel- und Versorgungsleitungen
in der Landeshauptstadt, Stadtteil Malstatt |
| |
Auftraggeber: GIU mbH & Co. Flächenmanagement KG
Bearbeitung: Februar 2002 - Juni 2014 |
weitere Info in der pdf-Datei |
 |
Erweiterung GE „Oberst Danzemer Gewann“
Geländemodellierung, Entwässerung, Straßenbau, Wasservers. sowie Erdarbeiten Kabel- und
Versorgungsleitungen / in der Gemeinde Mettlach, OT Weiten |
| |
Auftraggeber: Gemeinde Mettlach
Bearbeitung: Juni 2010 - August 2013 |
weitere Info in der pdf-Datei |
 |
Werksansiedlung Glas Trösch im GI „Lisdorfer Berg“
Entwässerung und Straßenbau
in der Kreisstadt Saarlouis, Stadtteil Lisdorf |
| |
Auftraggeber: Float Glass Engineering
Bearbeitung: Juni 2011 - November 2012 |
weitere Info in der pdf-Datei |
 |
GI „Wackenberg“
Geländemodellierung, Entwässerung und Straßenbau
in der Gemeinde Ensdorf |
| |
Auftraggeber: RAG Montan Immobilien GmbH
Bearbeitung: April 2010 - Oktober 2012 |
weitere Info in der pdf-Datei |
 |
Erschließung des Biomassezentrum Saarland
Entwässerung, Verkehrswege und Versorgungstrassen
in der Gemeinde Großrosseln, OT Dorf im Warndt |
| |
Auftraggeber: RAG Montan Immobilien GmbH
Bearbeitung: Juni 2008 - Februar 2010 |
weitere Info in der pdf-Datei |
 |
Neubaugebiet „In den heiligen Gärten“
Entwässerung und Verkehrsanlagen
in der Gemeinde Schiffweiler, OT Stennweiler |
| |
Auftraggeber: Gemeinde Schiffweiler
Bearbeitung: Februar 2008 - Januar 2010 |
weitere Info in der pdf-Datei |
 |
Revitalisierung Alte Ziegelei II
Geländemodellierung, Entwässerung Umverlegung Gas-HD sowie Trink- und Löschwasserversorgung
in der Gemeinde Kleinblittersdorf, OT Kleinblittersdorf |
| |
Auftraggeber: Saarland Bau und Boden Projektgesellschaft mbH
Bearbeitung: Mai 2008 - Oktober 2009 |
weitere Info in der pdf-Datei |
 |
Gewerbepark an der Saarbrücker Straße
Entwässerung, Verkehrsanlagen, Wasserversorgung
in der Gemeinde Schiffweiler, OT Landsweiler- Reden |
| |
Auftraggeber: Gemeinde Schiffweiler
Bearbeitung: September 2002 - November 2008 |
weitere Info in der pdf-Datei |
 |
Erschließung der Wohn- und Gewerbelandschaft „Dudweiler- Höhen“
Geländemodellierung, Entwässerung, Straßenbau und Beleuchtung
in der Landeshauptstadt, Stadtteil Dudweiler |
| |
Auftraggeber: Landesentwicklungsgesellschaft Saarland (LEG)
Bearbeitung: Januar 2001 - August 2007 |
weitere Info in der pdf-Datei |
 |
Wohngebiet „Auf'm Mühlenteich“
Entwässerung und Verkehrsanlagen
in der Gemeinde Losheim am See, OT Niederlosheim |
| |
Auftraggeber: Gemeinde Losheim am See
Bearbeitung: März 2005 - Oktober 2006 |
weitere Info in der pdf-Datei |
 |
Erschließung des GE Kohlenlagers „Griesborn“
Entwässerung, Versorgung und verkehrlische Erschließung
in der Gemeinde Schwalbach und Ensdorf |
| |
Auftraggeber: MGG Montan- Grundstücksgesellschaft mbH
Bearbeitung: November 2005 - Dezember 2005 |
weitere Info in der pdf-Datei |
 |
Tiefbautechnische Erschließung Science Park Saar 2. BA
in der Landeshauptstadt, Stadtteil Dudweiler |
| |
Auftraggeber: Science Park Saar GmbH und LBL
Bearbeitung: Februar 2003 - September 2005 |
weitere Info in der pdf-Datei |
 |
Gewerbegebiet Dilsburg 2. BA, Kanalerneuerung Holzer Straße 1. BA,
Einmündung Holzer Straße L 136 / Zufahrt GE Dilsburg
in der Gemeinde Heusweiler, OT Dilsburg |
| |
Auftraggeber: ZKE Heusweiler, GIU mbH & Co. Flächenmanagement KG
Bearbeitung: August 2003 - August 2005 |
weitere Info in der pdf-Datei |
 |
Gewerbegebiet Dilsburg
in der Gemeinde Heusweiler, OT Dilsburg |
| |
Auftraggeber: GIU mbH & Co. Flächenmanagement KG
Bearbeitung: März 2002 - August 2005 |
weitere Info in der pdf-Datei |
 |
Wohngebiet „Bollenberg“
Entwässerung und Verkehrsanlagen
in der Mittelstadt Völklingen, Stadtteil Ludweiler |
| |
Auftraggeber: Mittelstadt Völklingen
Bearbeitung: Juli 2004 - Juli 2006 |
weitere Info in der pdf-Datei |
 |
Erschließung „In den Waldwiesen“ sowie Kanalstauraum Sportplatz
Entwässerung und Verkehrsanlagen
in der Gemeinde Wadgassen, OT Hostenbach |
| |
Auftraggeber: Gemeinde Wadgassen
Bearbeitung: Mai 2004 - April 2005 |
weitere Info in der pdf-Datei |
 |
Erschließungsmaßnahme „Am Großwald“
Entwässerung und Verkehrsanlagen
in der Gemeinde Heusweiler, OT Eiweiler |
| |
Auftraggeber: Landesentwicklungsgesellschaft Saarland (LEG)
Bearbeitung: November 2003 - Februar 2005 |
weitere Info in der pdf-Datei |
 |
Wohngebiet „In den Wiesen“
Entwässerung und Verkehrsanlagen
in der Gemeinde Losheim am See, OT Hausbach |
| |
Auftraggeber: Gemeinde Loasheim am See
Bearbeitung: April 2003 - September 2004 |
weitere Info in der pdf-Datei |
 |
Wohngebiet „Knausholzschacht“
Entwässerung, Verkehrsanlagen sowie Kabel- und Versorgungsleitungen
in der Gemeinde Schwalbach, OT Elm |
| |
Auftraggeber: SaarProjekt
Bearbeitung: März 2004 - April 2004 |
weitere Info in der pdf-Datei |
 |
Wohngebiet „Am Heubügel“ Innere Wohngebietserschließung
Entwässerung und Verkehrsanlagen
in der Landeshauptstadt, Stadtteil Malstatt |
| |
Auftraggeber: Unternehmensgruppe Saarland- Bauträger
Bearbeitung: Dezember 2001 - November 2003 |
weitere Info in der pdf-Datei |
 |
Revitalisierung des ehemaligen Grubengeländes Camphausen
Entwässerung und verkehrliche Erschließung
in der Gemeinde Quierschied, OT Camphausen |
| |
Auftraggeber: RAG / SaarProjekt
Bearbeitung: September 2001 - Dezember 2001 |
weitere Info in der pdf-Datei |
ABWASSER - STRASSE - VERKEHR |
|
|